
83253 Rimsting
Diese gepflegte Doppelhaushälfte überzeugt durch ihre solide Bauweise, eine durchdachte Raumaufteilung und vielfältige Nutzungsmöglichkeiten. Das Haus umfasst insgesamt drei eigenständige Wohneinheiten und eignet sich sowohl als attraktive Kapitalanlage als auch für Eigennutzer, die zusätzlichen Wohn- oder Vermietungsraum wünschen.
Die ca. 80qm große Wohnung im Erdgeschoss ist derzeit nicht bewohnt und kann flexibel nach den Vorstellungen des neuen Eigentümers renoviert oder neu vermietet werden. Die Einheit im Obergeschoss ist aktuell vermietet und bietet somit eine sofortige Einnahmequelle. Das Dachgeschoss steht ebenfalls leer und eröffnet weiteres Potenzial – sei es zur Eigennutzung, zur Vermietung oder für eine mögliche Zusammenlegung mit einer der anderen Wohnungen.
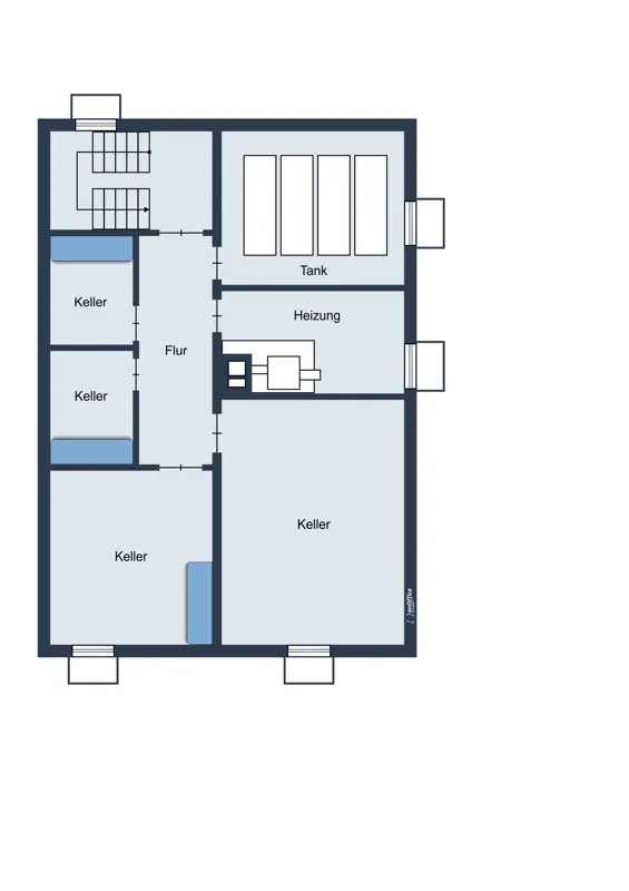
Jede der drei Wohneinheiten verfügt über ein eigenes Kellerabteil, das praktischen Stauraum bietet. Zwei Garagen ergänzen das Angebot und sorgen für komfortable Parkmöglichkeiten direkt am Haus.
Die Immobilie liegt in einer ruhigen und gepflegten Wohngegend und bietet ideale Voraussetzungen für Kapitalanleger, Mehrgenerationenwohnen oder die Kombination aus Eigenbedarf und Vermietung. Durch die flexible Nutzung der leerstehenden Einheiten und die bestehende Vermietung im Obergeschoss ergibt sich ein attraktives Gesamtpaket mit solidem Entwicklungspotenzial.
+ Drei abgeschlossene Wohneinheiten
+ Zwei Garagen
+ Jede Einheit mit eigenem Kellerabteil
+ EG und DG leerstehend – ideal für Eigennutzung oder Neuvermietung
+ OG vermietet – stabile Einnahmequelle
Diese Doppelhaushälfte befindet sich in einer der begehrtesten Lagen von Rimsting, einem charmanten Ort im malerischen Chiemgau. In unmittelbarer Nähe zum Chiemsee bietet die Lage eine ideale Kombination aus Ruhe und Erholung sowie eine Vielzahl von Freizeitmöglichkeiten. Die umliegende Landschaft ist geprägt von sanften Hügeln und bietet wunderschöne Wander- und Radwege, die sowohl Naturfreunde als auch Sportbegeisterte ansprechen. Rimsting selbst begeistert durch seine gute Infrastruktur mit zahlreichen Einkaufsmöglichkeiten, Cafés und Restaurants, die das Leben hier angenehm und komfortabel gestalten. Zudem ermöglicht die gute Anbindung an den öffentlichen Nahverkehr eine schnelle und unkomplizierte Erreichbarkeit der umliegenden Städte wie Prien am Chiemsee und Rosenheim. Somit vereint dieser Standort städtische Annehmlichkeiten mit der idyllischen Lebensqualität inmitten einer atemberaubenden Naturkulisse.
© 2026 Ihr Chiemseemakler